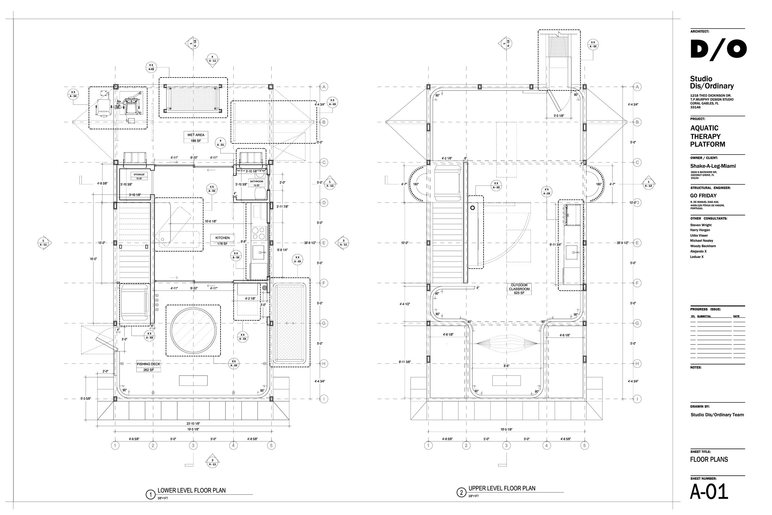
Aquatic Dis/Ordinary
Shake-A-Leg Miami (SALM), a local organization has vowed to “utilize the marine environment to improve the health, education, and independence of children and adults with physical, developmental, and economic challenges, in an inclusive community setting.” The psychological and physiological benefits of spending time near water, and by extension being in nature, are well documented. Specifically suited to SALM’s needs and ongoing operations, the aquatic therapy platform is designed for water access with and for non-conforming bodies.
-
Aquatic therapy platform and classroom
-
2023
-
Sophie Juneau, Dr. David McMillan, University of Miami’s Arc605 Studio, GoFrday
-
Shake-A-Leg Miami
“By starting from difference – from misfitting, unruly and non-conforming bodies – disability becomes a creative generator, producing new, previously unnoticed ways into designing.”
- Jos Boys, Disability Activist & Design Scholar

Adapted Kayak to suit the needs of a person with a lower extremity impairment

On and off ramp allowing for wheelchair users to access floating platforms

Multi-use ‘block’ with a foldable top that allows wheelchair users to independently enter and exit boats using a transfer method of access

Chair that allows a person with a lower extremity impairment to remain safely positioned and stable enough to sail